3-Bedroom Lock-Off Apartment with Rooftop Terrace and Caribbean Views in Puerto Morelos
FOR SALE
Quintana Roo, Benito Juárez, Cancún, Puerto Morelos, Puerto Morelos Puerto Morelos
Price: $1,101,000
Property Overview
1,138 sqft
3 Beds
4 Baths
— Kitchens
Condo
Overview
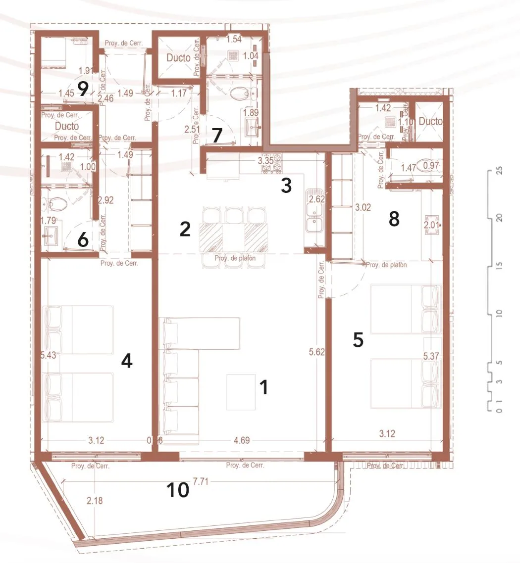
This apartment is a 3-bedroom lock-off unit with a flex room and views of the sea in Puerto Morelos, located just a few blocks from the Caribbean Sea. The property totals 182. 64 square meters, integrating living space and terraces.
It offers three bedrooms and a flexible room that can function as a fourth bedroom or media room. There are four full bathrooms, a living room, a dining room, a generously sized kitchen, and a laundry area. Spacious terraces provide natural light, sea breezes, and privileged views toward the beach. The lock-off design allows sections of the condo to be rented independently.
A private rooftop adds a unique feature, providing an exclusive space with a kitchenette, social area, Jacuzzi, sun decks, and spectacular views of the Caribbean Sea.
The building contains 75 apartments. Building amenities include a lobby, elevators, parking, bicycle parking, a gym, a meeting room, a rooftop swimming pool, a pool bar, BBQ areas, coworking spaces, and plunge pools. The property is pet-friendly.
The apartment is located steps from the beach and near the center of Puerto Morelos, a zone known for its tranquility and Caribbean atmosphere. Within a few minutes, you can find restaurants, cafes, supermarkets, shops, local markets, and recreational spaces.
Points of interest nearby include Cancun International Airport at 20-25 minutes, beach access within a 1-2 minute walk, the center of Puerto Morelos in 3 minutes, and Playa del Carmen within 25-30 minutes.
Property Features
- Bedrooms: 03
- Bathrooms: 04
- Area: 105.7 m²
- Area (sqft): 1,137.746 ft²
- City: Puerto Morelos
- Country: MX
Similar Homes You May Like
Equity Check
What's your Riviera Maya home worth?
See how local demand, tourism, and recent sales shape value in your area—then get a tailored snapshot built for homeowners in the Riviera Maya.
Get my free home valuation




































